Block of Flats in Gwardamangia
Overview
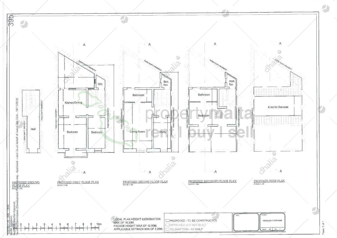
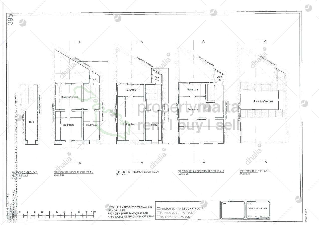
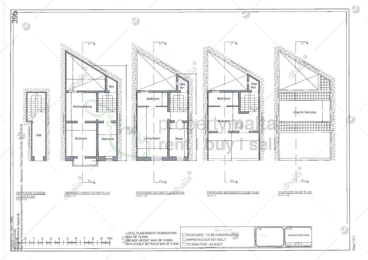
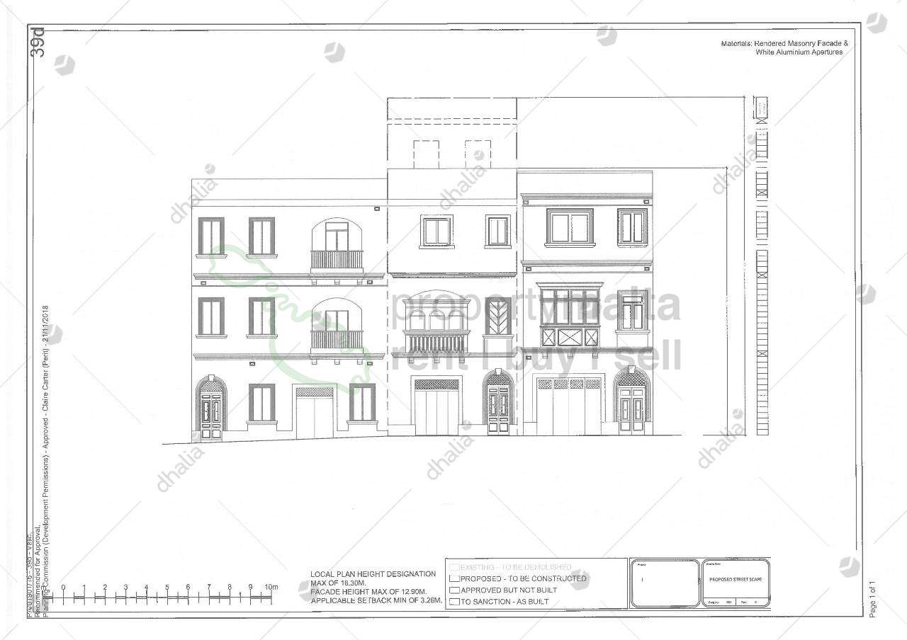
Block of three units of one-bedroom apartments one on each floor. Being sold built and in shell form.
Details
-
Property ID:P000213336
-
Lot Area:60 sqm
-
Home Area:60 sqm
-
Beds:3
-
Price:€275,000
-
Property Status:









