Terraced House in Gozo In-Nadur
Overview
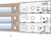
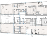
We are pleased to offer you three on plan terraced houses on the outskirts of Nadur. Each house features an open-plan design, with a large kitchen, living, and dining area that overlooks a private pool and beautifully landscaped garden. Other features include 3/4 spacious bedrooms some of which are ensuite, large terraces, BBQ area, a washroom and basement garages with a communal .
Details
-
Property ID:P000247617
-
Lot Area:100 sqm
-
Home Area:284 sqm
-
Beds:4
-
Price:€860,000
-
Property Status:









