Penthouse in Gozo Ir-Rabat
Overview
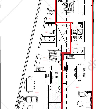
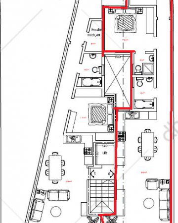
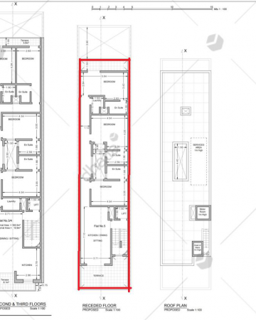
A two bedrooms Penthouse set on the outskirts of Victoria in a small block of only six units. facing ODZ. The layout consists of a combined kitchen/dining/living room overlooking a large terrace enjoying country and distant sea views, a hallway leading to the two bedrooms, one main bathroom, box room and a back terrace. Being offered in shell form state.
Details
-
Property ID:P000235311
-
Home Area:112 sqm
-
Beds:2
-
Price:€330,000
-
Property Status:




