Maisonette in St Julians
Overview
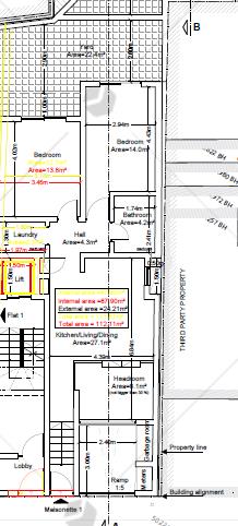
New on the market is this exciting residential project in the highly sought-after area of St. Julians, offering a spacious three-bedroom property designed for modern living. The layout features an open-plan kitchen, living, and dining area, three bedrooms (main with ensuite), and a backyard. Currently under construction, the property will be sold fully finished, including bathrooms and doors. Optional garages available. This development is ideal as a comfortable residence or a smart investment in one of the island’s prime locations. Completion is scheduled for mid-2027.
Details
-
Property ID:P000255341
-
Home Area:155 sqm
-
Beds:3
-
Price:€660,000
-
Property Status:




