Maisonette in Msida
Overview
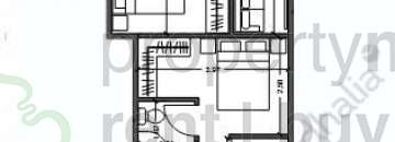
This property comprises two one-bedroom studio maisonettes, each featuring an open-plan kitchen, living, and dining area, a main bedroom, and a bathroom. Both units can be rented out separately as two individual studio units. Optional car spaces are also available.
Details
-
Property ID:P000255870
-
Home Area:55 sqm
-
Beds:2
-
Price:€308,000
-
Property Status:




