Guest House – Hotel in Rabat
Overview
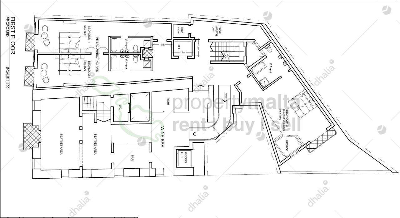
A unique development opportunity in a lovely location of Rabat with commanding country views and being offered for development into a luxury 20 room boutique hotel. The project covers an area of approx 400 square metres, with the possibility of an additional 800sqm and will also include a wine bar, restaurant, spa, indoor pool, outdoor pool and landscaped gardens. The project will be sold in a semi finished state, together will all relevant permits already paid and workable design of finishings by a reputable architect and designer.
Details
-
Property ID:P000182287
-
Lot Area:400 sqm
-
Home Area:400 sqm
-
Beds:20
-
Price:€4,000,000
-
Property Status:









