Gr Floor Maisonette in Naxxar
Overview
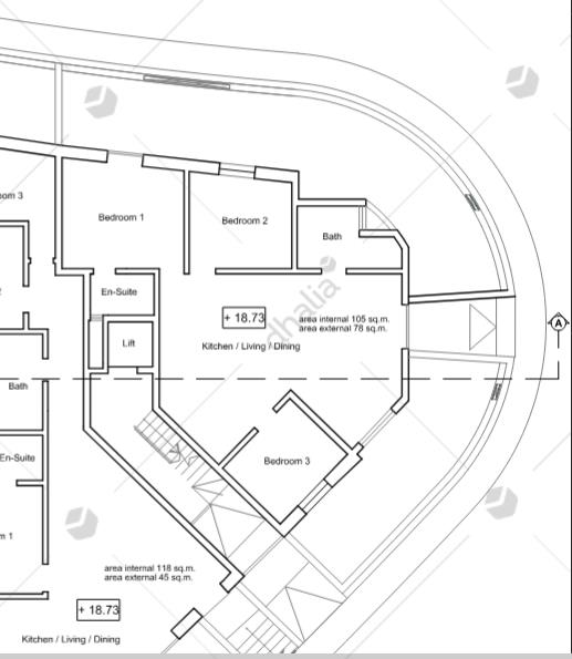
Modern corner Maisonette measuring approximately 130 sqm, enjoying its own private entrance and a well-sized outdoor area.
This well-presented residential unit offers a bright and spacious three-bedroom layout, set in an elevated position and benefiting from excellent privacy.
This accommodation comprises a generous open-plan kitchen, living and dining area, three separate bedrooms, including a main bedroom with an en suite, and a main bathroom, providing a
very comfortable and practical living environment.
Being south-facing, the property enjoys abundant natural light throughout the day, enhancing the
sense or space and warmth across the interior
The property will be fully furnished and equipped with brand-new BOSCH appliances. Furniture delivery is scheduled for mid-April 2026.
Details
-
Property ID:P000256615
-
Lot Area:120 sqm
-
Home Area:130 sqm
-
Beds:3
-
Price:€1,600
-
Property Status:




