Flats in Mosta
Overview
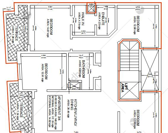
New block under construction offering a squarish layout four bedroom apartment. It consists of a master bedroom with walk in wardrobe and ensuite leading to a front terrace, three separate double bedrooms, main bathroom and an open plan, kitchen/living and dining leading also to a front terrace. It is being sold finished, excluding internal doors and bathrooms. Optional garages available starting from 90K.
Details
-
Property ID:P000251683
-
Home Area:132 sqm
-
Beds:4
-
Price:€535,000
-
Property Status:




