Flats in Marsascala
Overview
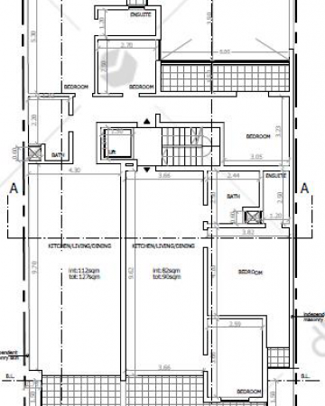
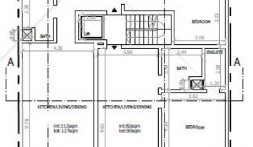
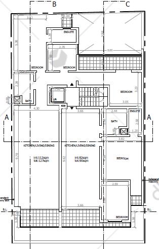
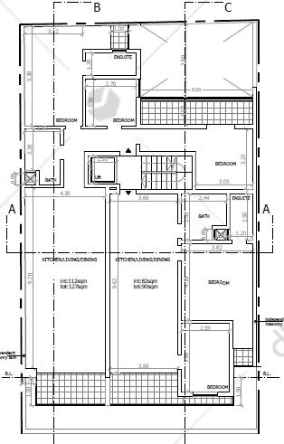
Available for lease is this second floor apartment in Marsascala. Layout consists of a combined kitchen/living/dining area leading to a front balcony, bathroom and three spacious bedrooms. Apartment is located close to all amenities and is fully equipped with modern furniture, appliances and air conditioning units. Contact agent for further information!
Details
-
Property ID:P000251555
-
Home Area:100 sqm
-
Beds:3
-
Baths:1
-
Price:€1,200
-
Property Status:









