Flats in Gozo Sannat
Overview
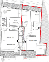
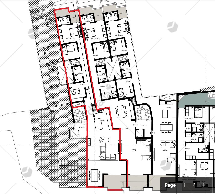
On-plan apartment on the third floor with three bedrooms, situated in the tranquil village of Sannat. The property consists of a combined kitchen/dining/living room, three bedrooms (one with ensuite facilities), a box room, the main bathroom and a balcony. The property will be sold in a shell form state with highly finished common areas. More units are available on different floors.
Details
-
Property ID:P000237633
-
Home Area:169 sqm
-
Beds:3
-
Baths:1
-
Price:€213,000
-
Property Status:




