Flats in Gozo Ir-Rabat

225,000
Beds: 4
Baths: 1

Overview

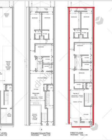
This apartment is located on the outskirts of Victoria, yet still very close to all amenities. This property features an open-plan kitchen/dining/living room leading to a spacious front balcony, four bedrooms (three of which with ensuite facility), a main bathroom and another back balcony. Not to be missed!

Details

  • Property ID:
    P000240966
  • Home Area:
    177 sqm
  • Beds:
    4
  • Baths:
    1
  • Price:
    225,000
  • Property Status:

Related Properties