Flats in Gozo Ir-Rabat
Overview
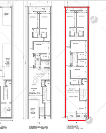
A corner apartment featuring two double bedrooms, sold in shell form, offering a prime opportunity to craft your ideal home. The layout includes a bright open-plan living area with access to a balcony, a main bathroom, and two double bedrooms—each with its own balcony, including a master bedroom with ensuite. Positioned to enjoy excellent natural light and beautiful views, this residence also benefits from access to a communal pool and garden, perfect for relaxation and outdoor living. Ideal for those seeking a peaceful setting with ample customization potential.
Details
-
Property ID:P000251331
-
Home Area:94 sqm
-
Beds:2
-
Baths:1
-
Price:€233,000
-
Property Status:









