Flats in Gozo In-Nadur
Overview
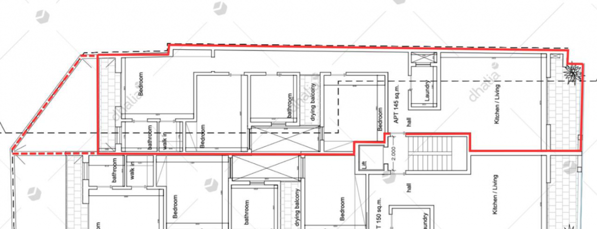
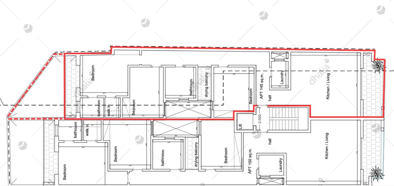
Perched in an elevated setting just a short walk from the iconic Kenuna Tower, is this new block total of ten units, each thoughtfully designed to maximise light, comfort, and livability. Complementing the homes are five underlying garages and three external parking spaces, providing essential convenience in this highly sought-after area. All units will be sold in shell form, including all common parts, giving buyers complete freedom to personalise their interiors to suit their lifestyle and vision. The development is offered freehold, making it an ideal opportunity for both end-users and investors seeking a secure and enduring asset.
Details
-
Property ID:P000255043
-
Home Area:145 sqm
-
Beds:3
-
Price:€240,000
-
Property Status:



