Flats in Birkirkara
Overview
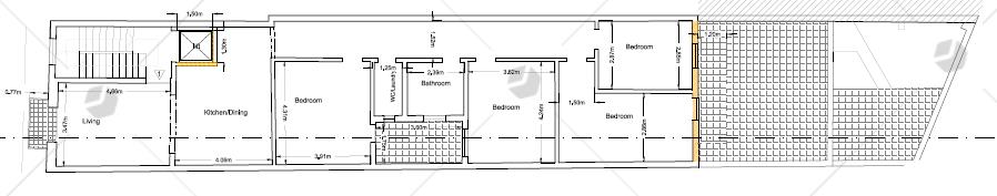
A ready-built, large four-bedroom apartment measuring approximately 238 square metres (220 square metres int/18 square metres ext). The layout comprises an open plan kitchen/living/dining leading to a front balcony, a main bathroom, a master bedroom with an ensuite, another three bedrooms, and a back terrace. Freehold.
Details
-
Property ID:P000255164
-
Home Area:238 sqm
-
Beds:4
-
Price:€480,000
-
Property Status:




